Xirdalanda satilan evler
Xirdalanda heyet evleri
Abşeron, Masazırda evler
Sumqayit heyet evi satilir
Sumqayıt bina evleri satilr


Bakı və Abşeronda
Naxçıvanda kiraye evler
Qəbələ - İsmayıllı - Şamaxı
Şəki - Qax - Zaqatala
Nabran - Quba - Qusar
Astara - Lənkəran - Lerik








Satılır 175000 Baxış sayı: 73| Tarix: 25.02.2026| Elan: 910282
Bina evi menzil / Yeni tikili
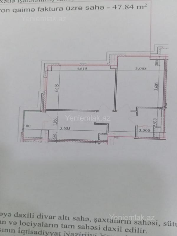
2 otaq
56 m2
18 / 18 Mərtəbə

Kupçasız
Park Yasamal yasayis kompleksi.Bina cox gozel binadi.Hazir temirli veziyyetde tehvil verilir.Qanuni 2 otaqdan ibaretdir.Binanin genis heyeti ,avto parki var.Göl ətrafında abadlaşdırılmış geniş ərazi OFIS HAQQI 1%

Təmirli
Qaz
Su
İşıq
Telefon
Kabel TV
Lift
Seyf Qapı
PVC pəncərə
Su çəni
Balkon
Mərkəzi istilik s
Kondisioner
Mətbəx mebeli
Kombi sistemi

Ünvan

Bakı
Yasamal rayonu
metro. İnşaatçılar
Yasamal rayonu

Əlaqə

Real emlak
Vasitəçi / Rieltor

Qeyd

Müstəqillik küç

  Faydalı linklər
Nabranda kiraye evXirdalanda heyet evleri kreditle..Masazirda heyet evleri kiraye..Sarayda kreditle bina evleri..Saray torpaq satilir..Sarayda kirayə həyət evləri..Novxanida bag evileri satilir..Novxanida villa kiraye..Novxani gunluk villa..Bakixanovda torpaq saheleri satilir..Bakixanovda evler satilir..Sumqayitda evler 2 otaqli..Merdekanda ucuz heyet evleri..Merdekanda gunluk kiraye evler..Merdekanda heyet evleri kiraye..Zabratda bina evleri satilir..Zabratda kreditle satilan heyet evleri..Gencede yeni binalarin qiymeti..Gencede mehle evlerin qiymeti..Gencede kreditle satilan evler..Gencede satilan torpaq saheleri..Bakıda günlük kiraye evler..Vəndamda kirayə evlər..Xirdalanda kiraye heyet evleri..Yasamalda kiraye evler 200-300..Sumqayitda kreditle evler..Sumqayitda kiraye evler..Bakida evlerin qiymeti..Bakida 2 otaqli kiraye evler..Masazirda satıilan heyet evleri..Masazirda bina evleri..Ehmedlide ipoteka ile satilan evler..Nerimanovda evlerin satisi..Nerimanovda kreditle satilan evler..