Xirdalanda satilan evler
Xirdalanda heyet evleri
Abşeron, Masazırda evler
Sumqayit heyet evi satilir
Sumqayıt bina evleri satilir


Bakı və Abşeronda
Naxçıvanda kiraye evler
Qəbələ - İsmayıllı - Şamaxı
Şəki - Qax - Zaqatala
Nabran - Quba - Qusar
Astara - Lənkəran - Lerik








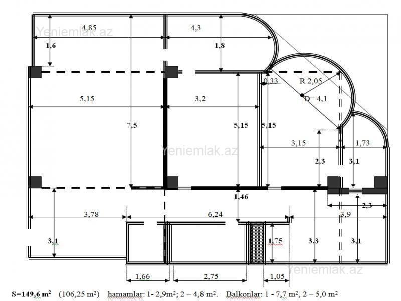
Satılır 365000 Baxış sayı: 20| Tarix: 29.04.2026| Elan: 969848
Bina evi menzil / Yeni tikili
3 otaq
150 m2
14 / 3 Mərtəbə

Kupça
TƏCİLİ SATILIR !!! ÇIXARIŞLI + İPOTEKAYA YARARLI Ünvan : Nərimanov ,Molla cümə küçəsi Yeni tikili Qanuni 3 otaq 150 kv sahəsi 16/3 mərtəbədə Sənədi çıxarış Qeyd : Nərmənovda Metroya 5,6 dəqiqəlik məsafədə çox əlverişli yerdə Ətrafında məktəb və baxçalar , tibb mərkəzləri, və bütün iaşə obyektləri mövcuddur Binanın yer altı qarajı, həyəti ,24 saat mühafizəsi, surətləri liftləri var Real alıcıya yerində endirim olunacaq Ətraflı məlumat üçüçn əlaqə saxlayın Xidmət haqqı 1%

Ünvan

Bakı
Nərimanov rayonu
metro. Nəriman Nərimanov
Aşıq Molla Cümə küçəsi

Əlaqə

Amil Bey
Vasitəçi / Rieltor

Qeyd


  Faydalı linklər
Nabranda kiraye evXirdalanda heyet evleri kreditle..Masazirda heyet evleri kiraye..Sarayda kreditle bina evleri..Saray torpaq satilir..Sarayda kirayə həyət evləri..Novxanida bag evileri satilir..Novxanida villa kiraye..Novxani gunluk villa..Bakixanovda torpaq saheleri satilir..Bakixanovda evler satilir..Sumqayitda evler 2 otaqli..Merdekanda ucuz heyet evleri..Merdekanda gunluk kiraye evler..Merdekanda heyet evleri kiraye..Zabratda bina evleri satilir..Zabratda kreditle satilan heyet evleri..Gencede yeni binalarin qiymeti..Gencede mehle evlerin qiymeti..Gencede kreditle satilan evler..Gencede satilan torpaq saheleri..Bakıda günlük kiraye evler..Vəndamda kirayə evlər..Xirdalanda kiraye heyet evleri..Yasamalda kiraye evler 200-300..Sumqayitda kreditle evler..Sumqayitda kiraye evler..Bakida evlerin qiymeti..Bakida 2 otaqli kiraye evler..Masazirda satıilan heyet evleri..Masazirda bina evleri..Ehmedlide ipoteka ile satilan evler..Nerimanovda evlerin satisi..Nerimanovda kreditle satilan evler..