Xirdalanda satilan evler
Xirdalanda heyet evleri
Abşeron, Masazırda evler
Sumqayit heyet evi satilir
Sumqayıt bina evleri satilir


Bakı və Abşeronda
Naxçıvanda kiraye evler
Qəbələ - İsmayıllı - Şamaxı
Şəki - Qax - Zaqatala
Nabran - Quba - Qusar
Astara - Lənkəran - Lerik








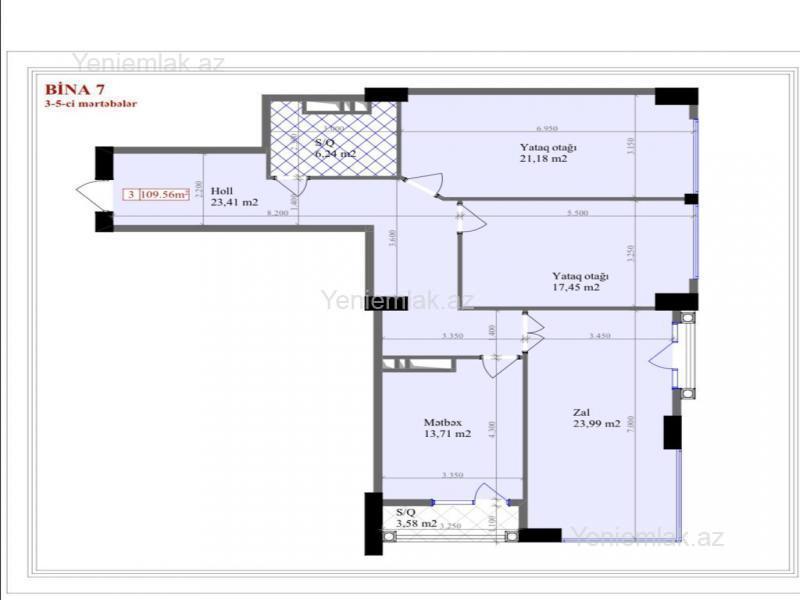
Satılır 363000 Baxış sayı: 31| Tarix: 24.04.2026| Elan: 964806
Bina evi menzil / Yeni tikili
3 otaq
110 m2
16 / 5 Mərtəbə

Kupçasız
28 May metrosunun və “Yaşıl Bazar”ın yaxınlığnda, Təbriz küçəsində, “İnzibati Məhkəmə”nin yanında, möhtəşəm “Trumf-Palace” yaşayış kompleksində, qanuni 3 otaqlı mənzil satılır. İstilik sistemi kombidir, şəhərə gözəl mənzərəsi var. Bütün əşyalar,texnika qalır. Buradan şəhərin mərkəzinə piyada qısa müddətdə çatmaq olar. Tezliklə çıxarış veriləcək. (Ofis haqqı 1%).

Ünvan

Bakı
Nərimanov rayonu
metro. 28 May
Təbriz küçəsi

Əlaqə

Asif m.
Vasitəçi / Rieltor

Qeyd


  Faydalı linklər
Nabranda kiraye evXirdalanda heyet evleri kreditle..Masazirda heyet evleri kiraye..Sarayda kreditle bina evleri..Saray torpaq satilir..Sarayda kirayə həyət evləri..Novxanida bag evileri satilir..Novxanida villa kiraye..Novxani gunluk villa..Bakixanovda torpaq saheleri satilir..Bakixanovda evler satilir..Sumqayitda evler 2 otaqli..Merdekanda ucuz heyet evleri..Merdekanda gunluk kiraye evler..Merdekanda heyet evleri kiraye..Zabratda bina evleri satilir..Zabratda kreditle satilan heyet evleri..Gencede yeni binalarin qiymeti..Gencede mehle evlerin qiymeti..Gencede kreditle satilan evler..Gencede satilan torpaq saheleri..Bakıda günlük kiraye evler..Vəndamda kirayə evlər..Xirdalanda kiraye heyet evleri..Yasamalda kiraye evler 200-300..Sumqayitda kreditle evler..Sumqayitda kiraye evler..Bakida evlerin qiymeti..Bakida 2 otaqli kiraye evler..Masazirda satıilan heyet evleri..Masazirda bina evleri..Ehmedlide ipoteka ile satilan evler..Nerimanovda evlerin satisi..Nerimanovda kreditle satilan evler..