Xirdalanda satilan evler
Xirdalanda heyet evleri
Abşeron, Masazırda evler
Sumqayit heyet evi satilir
Sumqayıt bina evleri satilr


Bakı və Abşeronda
Naxçıvanda kiraye evler
Qəbələ - İsmayıllı - Şamaxı
Şəki - Qax - Zaqatala
Nabran - Quba - Qusar
Astara - Lənkəran - Lerik








Satılır 363000 Baxış sayı: 38| Tarix: 02.02.2026| Elan: 889080
Bina evi menzil / Yeni tikili
3 otaq
110 m2
16 / 4 Mərtəbə

Kupçasız
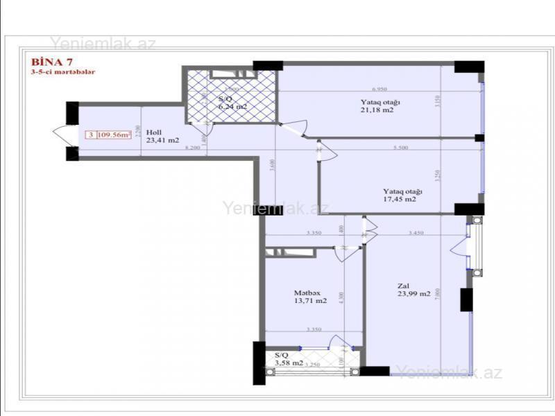
QANUNİ 3 OTAQLI MƏNZİL | PREMİUM YAŞAYIŞ Yaşıl Bazarın arxası – Triumf Palace Şəhərin mərkəzində, prestijli lokasiya Premium bina Tam təmirli – keyfiyyətli materiallarla Əşyalı + bütün məişət texnikası ilə birlikdə Qaz, su, işıq – 24/7 fasiləsiz Sənəd: Hal-hazırda müqavilə Qiymətdə real endirim mümkündür İnvestisiya üçün ideal fürsət! Aylıq 1300 – 1600 AZN aralığında rahat kirayə potensialı Həm yaşayış, həm də gəlir məqsədli alıcılar üçün əla seçim Üstünlüklər: Tavan hündürlüyü: 3.30 m – geniş və işıqlı atmosfer Otaqlardan hər iki istiqamətə açıq panoramik görüntü Qarşısında görüntünü məhdudlaşdıran bina yoxdur Yeraltı qaraj 2 ədəd sürətli Schindler lifti 28 May metrosuna piyada cəmi 10 dəqiqə Plan və sahələr: Holl – 23.5 m² Sanitar qovşaq – 6.3 m² Yataq otağı 1 – 21.2 m² Yataq otağı 2 – 17.5 m² Zal – 24 m² Mətbəx – 13.8 m² Balkon – 3.6 m² Yalnız ciddi alıcılar əlaqə saxlasın Zəng çatmadıqda WhatsApp vasitəsilə yazmağınız xahiş olunur Ofis haqqı: 1% (alıcı tərəfindən)

Təmirli
Qaz
Su
İşıq
Telefon
Kabel TV
Lift
Seyf Qapı
PVC pəncərə
Su çəni
Balkon
Mərkəzi istilik s
Kondisioner
Mətbəx mebeli
Əşyalı
Kombi sistemi

Ünvan

Bakı
Nəsimi rayonu
metro. 28 May
Qarabağ küçəsi

Əlaqə

Murad Bəy
Vasitəçi / Rieltor

Qeyd


  Faydalı linklər
Nabranda kiraye evXirdalanda heyet evleri kreditle..Masazirda heyet evleri kiraye..Sarayda kreditle bina evleri..Saray torpaq satilir..Sarayda kirayə həyət evləri..Novxanida bag evileri satilir..Novxanida villa kiraye..Novxani gunluk villa..Bakixanovda torpaq saheleri satilir..Bakixanovda evler satilir..Sumqayitda evler 2 otaqli..Merdekanda ucuz heyet evleri..Merdekanda gunluk kiraye evler..Merdekanda heyet evleri kiraye..Zabratda bina evleri satilir..Zabratda kreditle satilan heyet evleri..Gencede yeni binalarin qiymeti..Gencede mehle evlerin qiymeti..Gencede kreditle satilan evler..Gencede satilan torpaq saheleri..Bakıda günlük kiraye evler..Vəndamda kirayə evlər..Xirdalanda kiraye heyet evleri..Yasamalda kiraye evler 200-300..Sumqayitda kreditle evler..Sumqayitda kiraye evler..Bakida evlerin qiymeti..Bakida 2 otaqli kiraye evler..Masazirda satıilan heyet evleri..Masazirda bina evleri..Ehmedlide ipoteka ile satilan evler..Nerimanovda evlerin satisi..Nerimanovda kreditle satilan evler..